facebook youtube whatapps

Beyond the Best

Strategically nestled in the dynamic centre of Bandar Sri Sendayan, our shops enjoy a prime position in the township. Embraced by flourishing residential expansions from all directions, our location boasts unmatched accessibility and visibility, rendering it the ultimate destination for your entrepreneurial endeavours.

Beyond the Best

Strategically nestled in the dynamic centre of Bandar Sri Sendayan, our shops enjoy a prime position in the township. Embraced by flourishing residential expansions from all directions, our location boasts unmatched accessibility and visibility, rendering it the ultimate destination for your entrepreneurial endeavours.

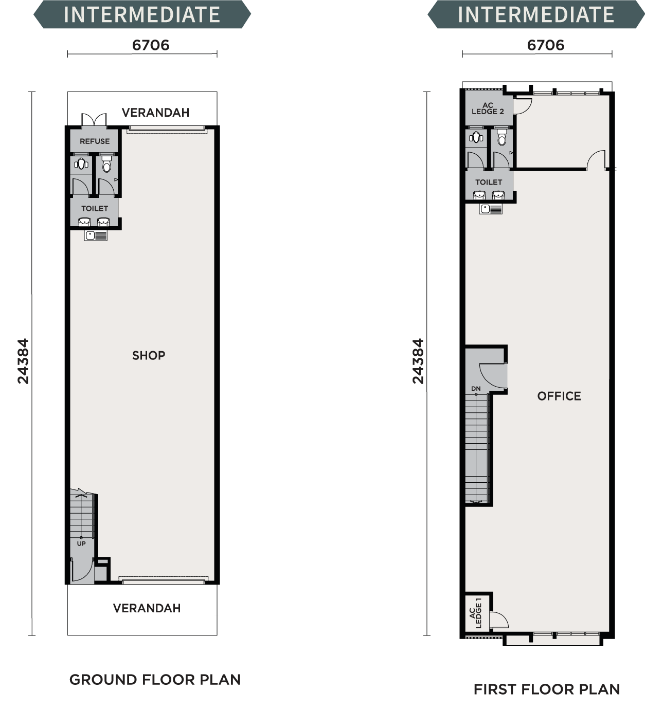
Each unit's floor plan may differ. Please refer to the Sales & Purchase Agreement for final details.

Bountiful Spaces for Breakthroughs

Embrace the luxury of vast, airy compartments meticulously designed to offer space to experiment and grow.

Intermediate Unit


STRUCTURE Reinforced Concrete    
WALL Cement Sand Bricks    
ROOFING COVERING Reinforced Concrete Slab / Metal Deck Roofing Sheet    
ROOF Metal Deck Roofing Sheet    
CEILING Plaster Ceiling / Skim Coat    
WINDOWS Aluminium Frame Glass Panel    
DOORS Entrance – M.S. Roller Shutter  
  Others − Plywood Flush Door / Fire Rated Door / M.S Grille Door  
Floor Finishes Shop − Cement Power Float  
  Office − Cement Power Float  
  Pantry − Cement Power Float  
  Staircase - Tiles  
  A/C Ledge − Cement Render  
  Toilets - Tiles  
  Verandah - Tiles  
Wall Finishes Toilets ≈ Tiles to 2.40m Height  
  Refuse Compartment − Tiles  
  Pantry ≈ Tiles to 1.50m Height  
  Others − Weather shield + Sealer (External) / Emulsion Paint (Internal)  
Sanitary and Plumbing Fittings Wash Basin − 4 Units  
  Sitting WC − 2 Units  
  Squatting WC − 2 Units  
  Shower Point − 2 Units  
  Kitchen Sink − 2 Units  
Electrical Installations Light Point − 22 Nos  
  Power Point (13 AMP) − 8 Nos  
  Ceiling Fan Point − 6 Nos  
  Data Point − 2 Nos  
Electrical Supply 3-Phase Power Supply    

Sekatan Kepentingan: Tanah yang diberimilik ini tidak boleh dipindahmilik, dipajak, digadai melainkan dengan kebenaran bertulis daripada Pihak Kuasa Negeri. All Renderings contained herein are Artist's Impressions only. The Information contained herein is subject to change without notification as maybe required by the relevant authorities or developer's project consultant. Whilst every care is taken in providing this information, the owner, developer and manager cannot be responsible for any variations. For avoidance of doubt on the buildings, unit layouts, specifications and development status, please always refer to the Sales & Purchase Agreement.

Top